NACIONALES
En el Fondo de Inversión Productiva “falsos arquitectos ” firman contratos de obras.
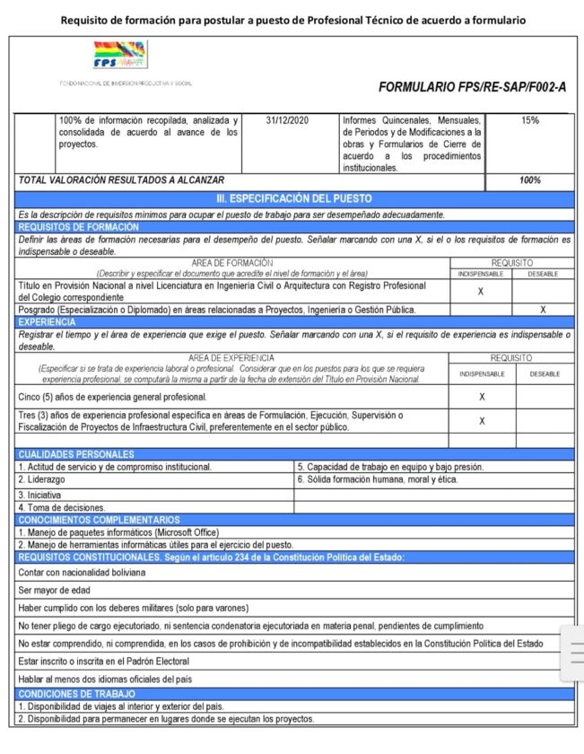
Martes 7 de junio 2022.- Denuncian por omisión , designación ilegal y Tráfico de Influencias a la Directora General Ejecutiva del Fondo Nacional de Inversión Productiva y Social , Rodney Pérez Choque, quien designó de manera indebida a Mariel Alejandra Torres Aldana, como profesional técnico , sin contar con título académico firma como arquitecta, la mencionada habría falsificado el registro o número profesional de otra persona .
Sinmordazadigital accedió a un contrato de obras para la reducción de riesgos y adaptación al cambió climático en el Municipio de Yamparaez Chuquisaca por un costo de 6 .891.316 de bolivianos, dónde firma como arquitecta Torres Aldana.








